Итак, продолжу вносить свой скромный вклад в эту тему Небольшая порция агентурных сведений
Компьютерный центр "Буденовский" (м. "Шоссе Энтузиастов").
Есть боковой вход с пандусом.
В Центре только один этаж, поэтому доступно абсолютно всё и полностью
Ну, в принципе - да, на безрыбье и рак - рыба. Хоть угол более-менее. Попросить завезти по такому пандусу можно любого человека. Усилий не больше, чем открыть дверь.
А я вчера наблюдала в кинотеатре "Полет" вот такую табличку:
Ответ для Mucha:
Ну, ниче так У меня на крыльце дома такие же швеллера лежат...
Но вообще, я поражаюсь, когда три ступеньки - и делают швеллера, потому что тут реально сделать полноценный пандус. Тем более, что и лестница широкая.
Дверь тяжелая, перед дверью еще не очень удобно установлена контрольная рамка. Спецклозетов не нашла ни в Мэ, ни в Жо.
Ступенек и порожков, правда, нет нигде - ни в фойе, ни в зале. (Зал маленький, очень уютный)
Когда я попросила кассиршу уточнить, что подразумевает под собой надпись на табличке (к которой пришлось ее отвести почитать, потому что она вообще не подозревала о ней ). Ответ был сформулирован на ходу: "Имеется в виду, что лицам с ограниченными возможностями МОЖНО приходить в наш кинотеатр".
Потом, правда, ее осенило воспоминание, и она сказала, что у них есть оборудование для глухих, которое они при необходимости могут выдать.
Ответ для Lerika:
Lerika:
Но вообще, я поражаюсь, когда три ступеньки - и делают швеллера
Я тоже.
Видимо, работает какой-то гвоздями намертво вбитый в головы заказчиков и строителей стереотип. А читать нормативные документы - дурной тон.
Очень интересует информация по к/т "Орион" - никто не был?
Информация в Интернете о нем очень бравурная:
"Кинотеатр "Орион" оборудован по последнему слову техники, с учетом современных, самых высоких требований к дизайну и комфорту."
*Не хотелось бы наткнуться на швеллера, как последнее слово техники.
О. Там даже на их сайте есть информация, что для слабовидящих и слабослышащих оборудовано.
*И "пандусами", ага
Да уж, правда, понаписали... Вводят народ в заблуждение.
Вот то ли дело у нас ДК "Прожектор". На сайте вообще никакой практически информации - только типа афиши. А в реальности он такими классными пандусами оснащен. Прям сердце радуется Доступен полностью.
Ncil:
Что то меня цвет этого "последнего чуда техники" смутил, не очень гламурно?
Интенсивный желтенький? Не, все нормально - это для слабовидящих - чтобы они не наткнулись на препятствие, когда будут направляться к перилам.
*Искать перила, впрочем, на входе к/т "Полет" нет никакой необходимости. Ибо их там нет
Ответ для Lerika:
Lerika:
Доступен полностью.
А где Вы там сидите в зале?
Там есть спецместа для колясок?
Или съемные кресла?
А где Вы там сидите в зале?
Там есть спецместа для колясок?
Или съемные кресла?
Нет кресла обычные.
Там первый ряд укороченный. Так что места для колясок только в первом ряду фактически
Я лично на кресло пересаживалась, а коляску рядом поставила (крайнее место, естественно).
Так и должно быть.
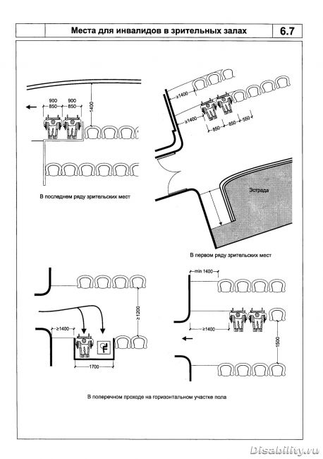
*В случае отстутствия промежуточных проходов первый или (и) последний ряд должен предусматривать возможность установки кресла-коляски (5% мест для зала 50-150 чел, 3% - 150-300, 2 % - 300-1000)
Ответ для Reader:
П. 6.43
Свод правил по проектированию и строительству СП 35-103-2001
"Общественные здания и сооружения, доступные маломобильным посетителям"
и
табл.1 раздела "Кинотеатры и киноконцертные залы"
Рекомендации по проектированию окружающей среды, зданий и сооружений с учетом потребностей инвалидов и других маломобильных групп населения
Выпуск 14 "Общественные здания и сооружения. Кинотеатры, клубы, библиотеки, музеи"
Да и я рада!
Ребрышки металлические, наверное, чтобы по плиткам не скользить (пандус выложен скользкими плитками, я правильно поняла?). Но угол наклона, по-моему, правильный.
Ответ для Маркиза:
Да, кстати, плитки не такие уж и скользкие.. А немножко шершавые Мне так показалось во всяком случае.
А внутри там очень много всего интересного! Компьютерная техника во всей своей красе. Есть все что угодно: от сборки компьютеров под заказ до колонок, наушников, ковриков для мыши, часов, книг на компьютерную тематику, игр, программ... В общем, все, что душа пожелает Причем, там много разных фирм собраны под одной крышей. Очень интересно по этому Центру погулять. Там просто глаза разбегаются - не знаешь, в какую сторону двигаться.
Да, еще и кафе есть И тоже доступно, естественно.
Маркиза
26 апр. 2009 14:26
ЗоопаркПрикольная фотка) На форуме клуба "Крылья" тоже поместите, пожалуйста.
Lerika
02 май 2009 21:46
ЗоопаркКомпьютерный центр "Буденовский" (м. "Шоссе Энтузиастов").
Есть боковой вход с пандусом.
В Центре только один этаж, поэтому доступно абсолютно всё и полностью
Маркиза
03 май 2009 02:21
ЗоопаркПлитки? А ребрышки металлические? Как в эксплуатации? Перил нет...
Lerika
03 май 2009 08:09
ЗоопаркДа, перил нет - я тоже заметила. Ребрышки - металлические, да.
Заехала на него с помощью
Да, в общем, я была рада и такому.
Mucha
03 май 2009 10:37
ЗоопаркНу, в принципе - да, на безрыбье и рак - рыба. Хоть угол более-менее. Попросить завезти по такому пандусу можно любого человека. Усилий не больше, чем открыть дверь.
А я вчера наблюдала в кинотеатре "Полет" вот такую табличку:
Mucha
03 май 2009 10:43
Кинотеатр "Полет"
Lerika
03 май 2009 10:55
Доступность социокультурных объектовНу, ниче так
Но вообще, я поражаюсь, когда три ступеньки - и делают швеллера, потому что тут реально сделать полноценный пандус. Тем более, что и лестница широкая.
Mucha
03 май 2009 11:02
Кинотеатр "Полет"Ступенек и порожков, правда, нет нигде - ни в фойе, ни в зале. (Зал маленький, очень уютный)
Когда я попросила кассиршу уточнить, что подразумевает под собой надпись на табличке (к которой пришлось ее отвести почитать, потому что она вообще не подозревала о ней
Потом, правда, ее осенило воспоминание, и она сказала, что у них есть оборудование для глухих, которое они при необходимости могут выдать.
Ответ для Lerika:
Я тоже.
Видимо, работает какой-то гвоздями намертво вбитый в головы заказчиков и строителей стереотип.
Lerika
03 май 2009 11:10
Доступность социокультурных объектовА где этот кинотеатр находится приблизительно? В каком округе?
Mucha
03 май 2009 11:13
Кинотеатр "Полет"В р-не м.Сходненская.
О. Там даже на их сайте есть информация, что для слабовидящих и слабослышащих оборудовано.
*И "пандусами", ага.
Mucha
03 май 2009 11:17
Кинотеатр "Орион"Информация в Интернете о нем очень бравурная:
"Кинотеатр "Орион" оборудован по последнему слову техники, с учетом современных, самых высоких требований к дизайну и комфорту."
*Не хотелось бы наткнуться на швеллера, как последнее слово техники.
Lerika
03 май 2009 11:21
Кинотеатр "Орион"Да уж, правда, понаписали...
Вот то ли дело у нас ДК "Прожектор". На сайте вообще никакой практически информации - только типа афиши. А в реальности он такими классными пандусами оснащен. Прям сердце радуется
Ncil
03 май 2009 11:24
Кинотеатр "Орион"Что то меня цвет этого "последнего чуда техники" смутил, не очень гламурно?
Mucha
03 май 2009 11:55
Кинотеатр "Полет"Интенсивный желтенький? Не, все нормально - это для слабовидящих - чтобы они не наткнулись на препятствие, когда будут направляться к перилам.
*Искать перила, впрочем, на входе к/т "Полет" нет никакой необходимости. Ибо их там нет
Ответ для Lerika:
А где Вы там сидите в зале?
Там есть спецместа для колясок?
Или съемные кресла?
Lerika
03 май 2009 11:59
Кинотеатр "Полет"Нет кресла обычные.
Там первый ряд укороченный. Так что места для колясок только в первом ряду фактически
Я лично на кресло пересаживалась, а коляску рядом поставила (крайнее место, естественно).
Mucha
03 май 2009 12:13
ДК "Прожектор"Так и должно быть.
*В случае отстутствия промежуточных проходов первый или (и) последний ряд должен предусматривать возможность установки кресла-коляски (5% мест для зала 50-150 чел, 3% - 150-300, 2 % - 300-1000)
Reader
03 май 2009 12:39
ДК "Прожектор"Скажите, пожалуйста, а откуда эти проценты?
Mucha
03 май 2009 12:48
ДК "Прожектор"П. 6.43
Свод правил по проектированию и строительству СП 35-103-2001
"Общественные здания и сооружения, доступные маломобильным посетителям"
и
табл.1 раздела "Кинотеатры и киноконцертные залы"
Рекомендации по проектированию окружающей среды, зданий и сооружений с учетом потребностей инвалидов и других маломобильных групп населения
Выпуск 14 "Общественные здания и сооружения. Кинотеатры, клубы, библиотеки, музеи"
Полностью документы скачать можно здесь:
Маркиза
03 май 2009 13:49
Компьютерный клубДа и я рада!
Ребрышки металлические, наверное, чтобы по плиткам не скользить (пандус выложен скользкими плитками, я правильно поняла?). Но угол наклона, по-моему, правильный.
А что там внутри интересного?
Lerika
03 май 2009 13:55
Компьютерный клубДа, кстати, плитки не такие уж и скользкие.. А немножко шершавые
А внутри там очень много всего интересного!
Да, еще и кафе есть